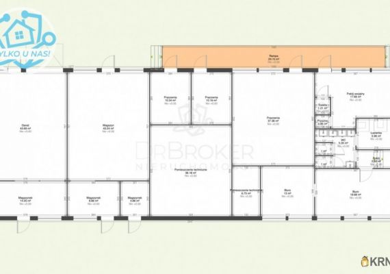
Bielsk Podlaski, M. Kopernika

Rent
Area : 250 sqm
Rent :
Maintence fees :
Komercjalizacja

15-375 Białystok
Kaczorowskiego 7 lok. 25U
Contact
zobacz kontakt
  • www.drbroker.pl
  • 737 165 445
  • biuro@drbroker.pl
zapytaj o ofertę
Other company offers

City: Białystok

City: Białystok

City: Białystok

City: Białystok

Ostatnio oglądane

City: Bielsk Podlaski

City: Kraków

City: Warszawa

City: Wrocław