Lublin - 87.30m2

Lublin,

Sprzedaż
Powierzchnia : 87.3 mkw.
Cena : 0
Komercjalizacja
Big City Broker Sp. z o.o. S.K.
20-078 Lublin
3-go maja 18/2
Kontakt
zobacz kontakt
  • www.bigcitybroker.pl
  • 81 307 80 90
  • biuro@bigcitybroker.pl
zapytaj o ofertę
Inne oferty firmy
Lublin - 35.70m2

Lublin - 35.70m2

Miasto: Lublin

Lublin - 71.96m2

Lublin - 71.96m2

Miasto: Lublin

Lublin - 62.00m2

Lublin - 62.00m2

Miasto: Lublin

Wólka - 192.00m2

Wólka - 192.00m2

Miasto: Wólka

Ostatnio oglądane
Barcin - 36.11m2

Barcin - 36.11m2

Miasto: Barcin

Lublin - 87.30m2

Lublin - 87.30m2

Miasto: Lublin

Radom - 48.00m2

Radom - 48.00m2

Miasto: Radom

Rewal - 99.66m2

Rewal - 99.66m2

Miasto: Rewal

Litevski ArtResidence to prestiżowa inwestycja realizowana w ścisłym centrum Lublina, tuż przy Placu Litewskim. Nowoczesny 4-piętrowy budynek mieszkalno-usługowy z dwupoziomowym garażem podziemnym charakteryzuje się wysokim standardem wykończenia z użyciem szlachetnych materiałów i naj

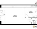
Litevski ArtResidence to prestiżowa inwestycja realizowana w ścisłym centrum Lublina, tuż przy Placu Litewskim. Nowoczesny 4-piętrowy budynek mieszkalno-usługowy z dwupoziomowym garażem podziemnym charakteryzuje się wysokim standardem wykończenia z użyciem szlachetnych materiałów i najnowszych rozwiązań technicznych.   Wyjątkowa lokalizacja sprawia, że Litevski ArtResidence to idealne miejsce do prowadzenia działalności usługowej. Prezentowany lokal położony jest na parterze prestiżowego budynku z bezpośrednim wejściem od ulicy. Na powierzchni 87,35 m2 znajduje się: - powierzchnia usługowa 60,3 m2 - pomieszczenie socjalne 21,3 m2 - toaleta 5,75 m2. Dostępne są również inne lokale o powierzchni od 87,3 m2 do 142,6 m2.  Atrakcyjna cena! Po szczegółowe informacje zapraszam do kontaktu telefonicznego bądź do biura. Treść niniejszego ogłoszenia nie stanowi oferty handlowej w rozumieniu Kodeksu Cywilnego. Treść ma charakter informacyjny i zalecamy ich osobistą weryfikację. Kontaktując się z biurem Klient wyraża zgodę na przetwarzanie danych osobowych zgodnie z przepisami ustawy z dnia 29 sierpnia 1997 roku o ochronie danych osobowych / Dz.U.Nr. 133 poz. 883/. Klientowi przysługuje prawo do wglądu do swoich danych osobowych i ich aktualizacji.